- Empty cart
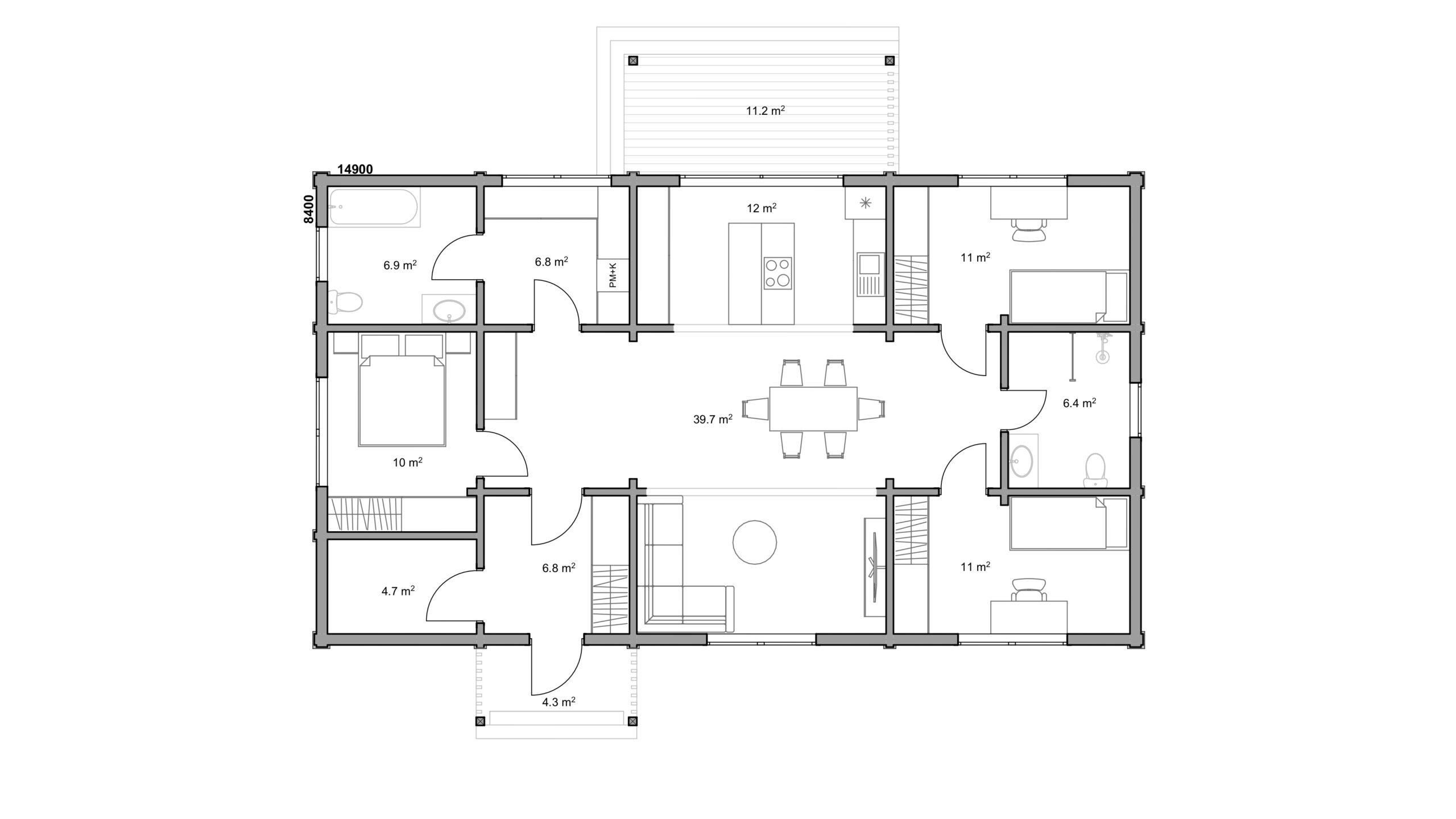
Urve115.3 m2
Urve is a single-storey log home with 3 bedrooms. The house has 2 bathrooms and a spacious living room in the center of the house. The terrace is accessible through the kitchen.
- Floor area: 115,3 m2
- Storeys: 1
- Bedrooms: 3
- Terrace: 11,2 m2
- The project can be modified according to client`s requirements.
- The house can be produced from laminated square logs or round logs.
- We also produce houses based on individual projects.
Pictures and floor plans




