- Tühi korv
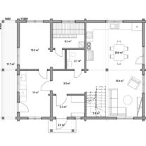
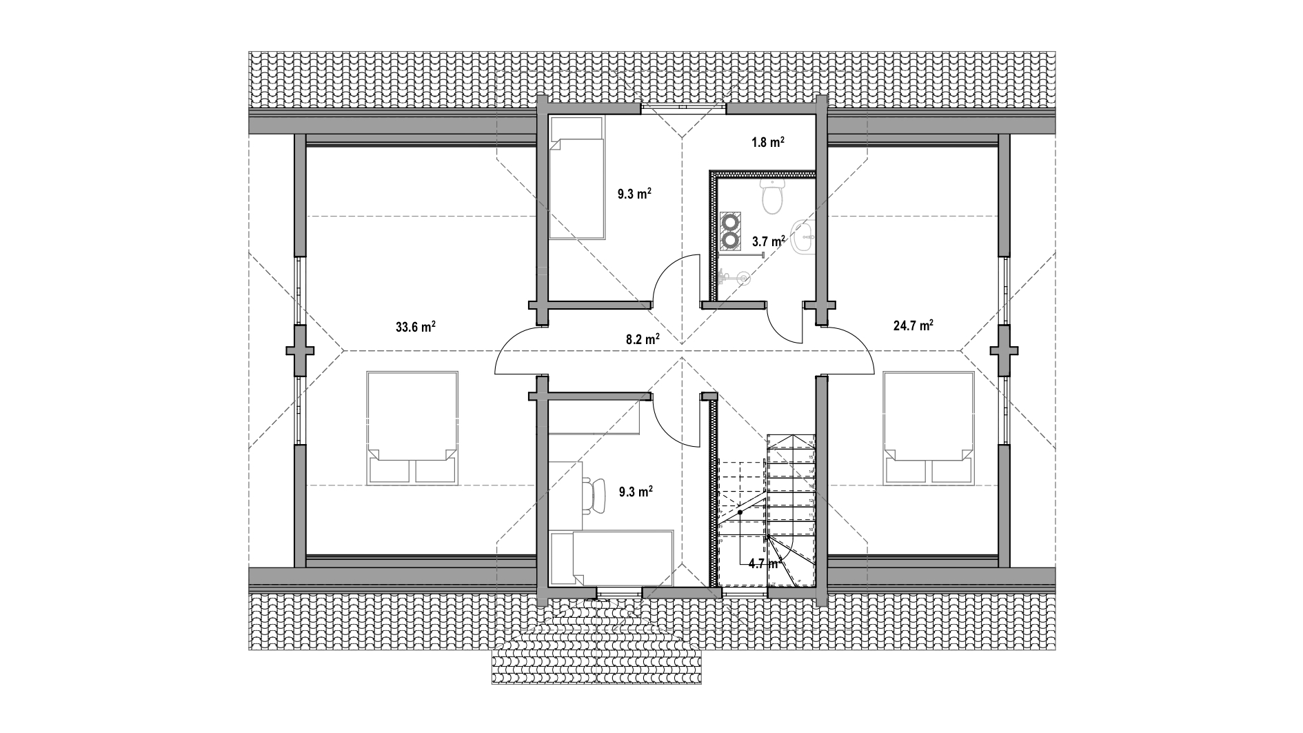
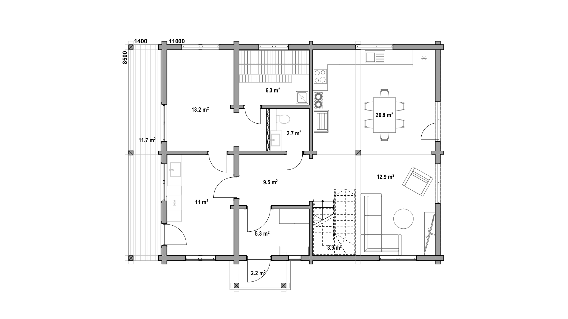
Lagle180.9 m2
Lagle on praktiline kahekorruseline palkmaja. Esimesel korrusel paiknevad valgusküllane avatud planeeringuga elutuba-köök, saun ja abiruumid. Teise korruse moodustavad neli magamistuba. Planeering võimaldab sinna luua täiendavaid tube või osa siseruumi arvelt välja ehitada katusealuse rõdu.
- Põrandapind: 180,9 m²
- Suletud netopind (viilu all 1,6 m kõrguselt): 155,9 m2
- Korruseid: 2
- Magamistube: 4
- Terrass/rõdu: 11,7 m²
- Antud plaanilahendust on võimalik soovidele vastavalt muuta.
- Maja on võimalik toota nelikant liimpalgist või ümarpalgist.
- Toodame ka individuaalprojektide järgi.
Pildid ja plaanid





