- Tühi korv
FREYA186 m2
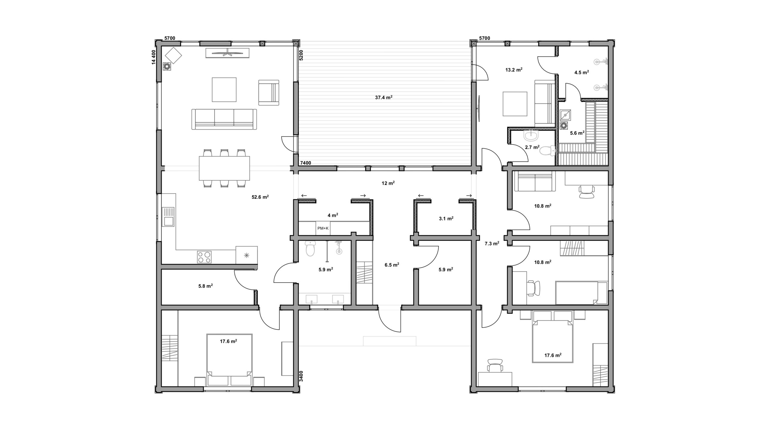
Freya H-kujuline arhitektuur loob selgelt eraldatud ühis- ja privaattsoonid, mille keskseks ruumiks on avar 52,6 m² avatud köök-elutuba. Maja südames asuvale 37,4 m² terrassile on mugav juurdepääs nii elutoast kui ka hoone teises tiivas paiknevast saunaruumidest, muutes selle ideaalseks vaba aja veetmiseks ja külaliste võõrustamiseks. Mudeli läbimõeldud planeering sisaldab mitut ruumikat magamistuba ja lisaruume, tagades privaatsuse ja paindlikud lahendused igale pereliikmele.
- Põrandapind: 186 m2
- Korruseid: 1
- Magamistube: 3-4
- Terrass: 37,4 m2
- Antud plaanilahendust on võimalik soovidele vastavalt muuta.
- Maja on võimalik toota nelikant liimpalgist või ümarpalgist.
- Toodame ka individuaalprojektide järgi.
Pildid ja plaanid



